CASA A PINEDES DE L’ARMENGOL
- 215.000€
CASA A PINEDES DE L’ARMENGOL
- 215.000€
Descripció
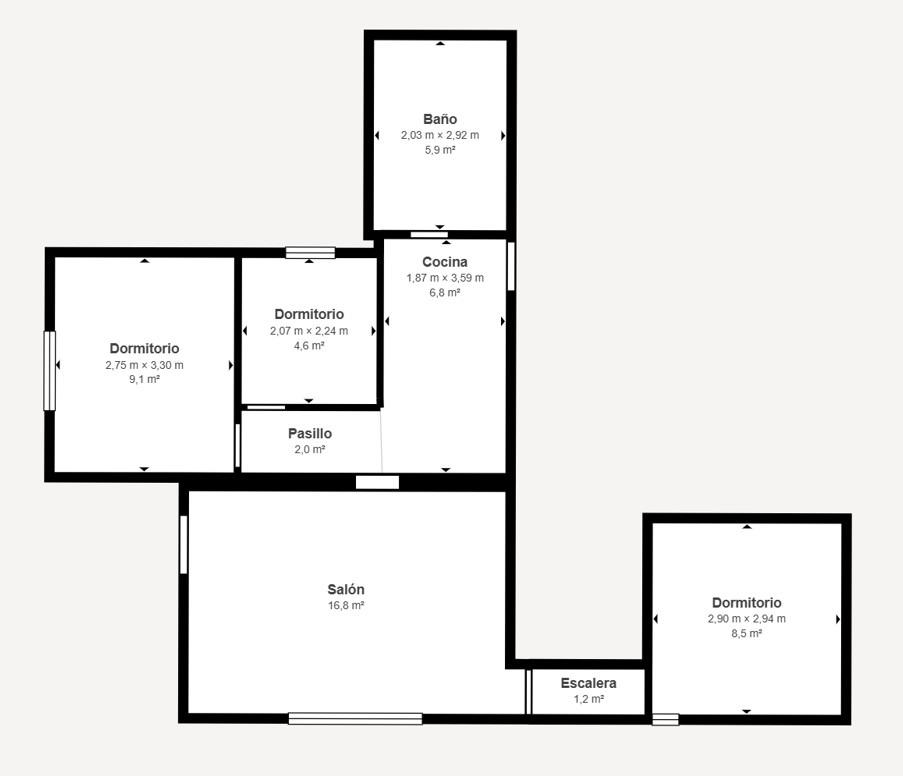
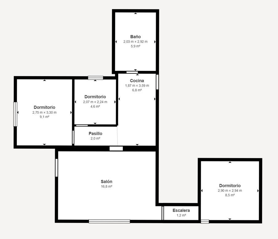
¡Os presentamos tu nuevo hogar en Las Pinedes de l’Armengol, La Torre de Claramunt! Esta encantadora casa reformada ofrece un espacio ideal para disfrutar del confort y la tranquilidad. Con una superficie construida de 114 m² y ubicada en una amplia parcela de 861 m², esta propiedad cuenta con todo lo que necesita para vivir cómodamente. Dispone de tres habitaciones: una doble perfecta para el descanso reparador y dos sencillas ideales como dormitorio adicional o estudio. Además, cuenta con un baño completo actualizado que se adapta a las necesidades modernas.
Imagina pasar tus días soleados disfrutando del aire libre gracias a su fantástica piscina privada y relajándote en la terraza donde puedes organizar reuniones familiares o simplemente desconectar mientras contemplas el paisaje natural circundante. También incluye un trastero perfecto para almacenar esos objetos extra que no usas diariamente.
La finca está completamente vallada proporcionando privacidad total; y cuenta con placas solares para un perfecto ahorro para el bolsillo.
Adreça
Obre a Google Maps-
Ciutat: La Torre de Claramunt
-
Estad/Comtat: BARCELONA
-
Àrea: Les Pinedes de l´Armengol
Detalls
Actualizado en desembre 12, 2025 a 10:02 pm-
Referència 7463
-
Preu 215.000€
-
Mida de la propietat 80.00 m2 útils
-
Dormitoris 3
-
Bany 1
-
Tipus de propietat Casa
-
Tipus Operació Comprar
Detalls addicionals
-
Conservació Reformat
-
Antiguitat 1968
-
Superfície Útil 80.00 m2
-
Superfície Construïda 114.00 m2
-
Superfície parcel·la 893.78 m2
-
Superfície terrassa 750.00 m2
-
Fusteria Interior Fusta
-
Fusteria Exterior Alumini/Climalit
-
Classificació energètica E
-
Consum d'energia 245 kWh/m2 Any
-
Classificació emisssions F
-
Emissions 64 Kg CO2 / m2 Any
-
I.B.I. 246.52 €
Visita virtual 360°
Propietats similars
- aladetres



















































