MAGNIFIC PIS EN VENTA AL BARRI DE LES FLORS
- 230.000€
MAGNIFIC PIS EN VENTA AL BARRI DE LES FLORS
- 230.000€
Descripció
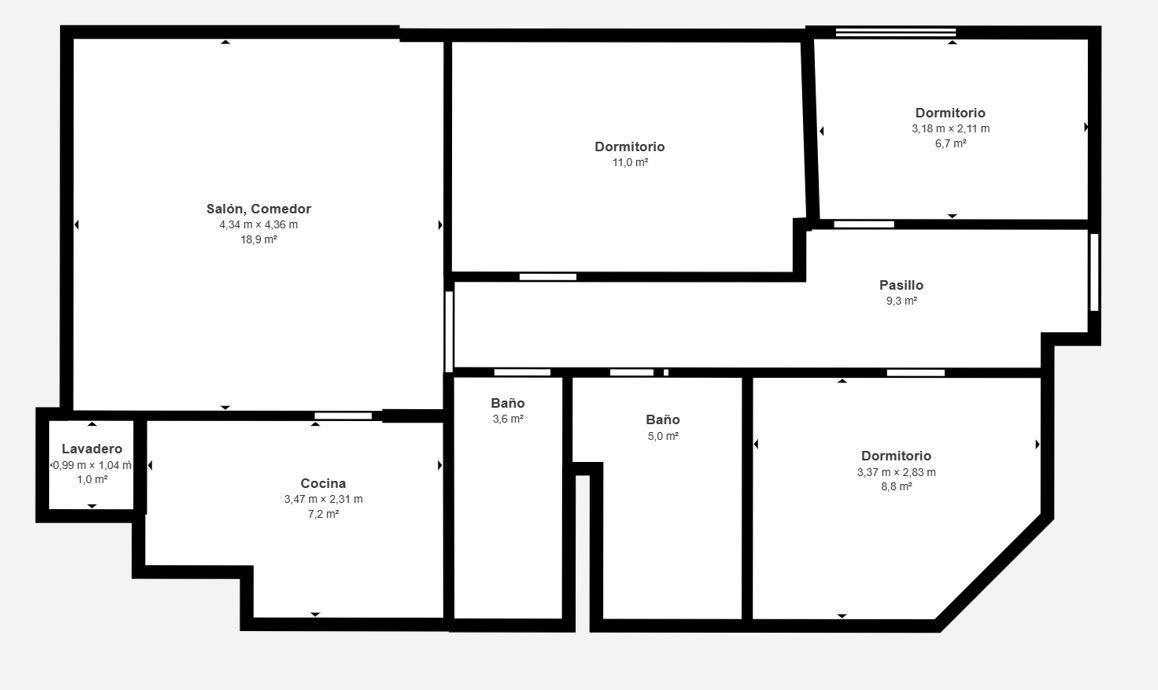
Et presentem aquest fantàstic pis de 84 m², situat en una finca tranquil·la de només 4 veïns, al demandat barri de les Flors d’Igualada.
L’habitatge es distribueix en 3 dormitoris, 2 banys complets, un ampli i lluminós saló-menjador, i una cuina independent amb sortida a safareig, oferint comoditat i funcionalitat al dia a dia.
Es troba en perfecte estat de conservació, llest per entrar-hi a viure.
L’edifici disposa d’ascensor i compta amb excel·lents extres que aporten un gran valor afegit: plaça de pàrquing, traster i terrassa comunitària, ideal per gaudir de l’aire lliure.
Ubicat en una zona tranquil·la i ben comunicada, amb tots els serveis pròxims: comerços, col·legis, transport i zones verdes.
El preu no inclou impostos, despeses de notaria ni registre.
Et podem ajudar en el finançament, consulta’ns com.
Adreça
Obre a Google Maps-
Ciutat: Igualada
-
Estad/Comtat: BARCELONA
-
Àrea: Barri de Les Flors
Detalls
Actualizado en gener 22, 2026 a 3:01 am-
Referència 7478
-
Preu 230.000€
-
Mida de la propietat 75.00 m2 útils
-
Dormitoris 3
-
Banys 2
-
Garatges 2
-
Tipus de propietat Pis
-
Tipus Operació Comprar
Detalls addicionals
-
Conservació Entrar a viure
-
Antiguitat 2010
-
Planta 2
-
Superfície Útil 75.00 m2
-
Superfície Construïda 84.00 m2
-
Superfície terrassa 2.00 m2
-
Classificació energètica G
-
Classificació emisssions G
-
Emissions 1234.99 Kg CO2 / m2 Any
Característiques
Visita virtual 360°
Propietats similars
NOVA PROMOCIÓ! OPORTUNITAT!
- 195.000€
NOVA PROMOCIÓ! OPORTUNITAT!
- 190.000€
NOVA PROMOCIÓ! OPORTUNITAT!
- 225.000€
NOVA PROMOCIÓ! OPORTUNITAT!
- 220.000€

























